Instalación de Pérgola Bioclimática y Pérgola con Techo Fijo de Panel Sándwich con cristal fijo en un Chalet de Leganés en Madrid
Tipo de Cliente:
Particular.
Ubicación de la Pérgola Bioclimática y Techo Fijo
Leganés, zona sur de Madrid.
Cerramiento instalado:
Pérgola Bioclimática de lamas orientables adosada a dos muros con vidrio Fijo de cristal 3+3 acabado mate, con un diseño único de dos pérgolas en una única estructura: una Pérgola Bioclimática Orientable y una Pérgola Solario con panel sándwich para cubrir la zona de la barbacoa y permitir la salida de humos.
TIEMPO EN LA INSTALACIÓN DE LA PÉRGOLA BIOCLIMÁTICA:
Días
y Horas
Características de la instalación de Pérgola Bioclimática y Pérgola con Techo Fijo de Panel Sándwich
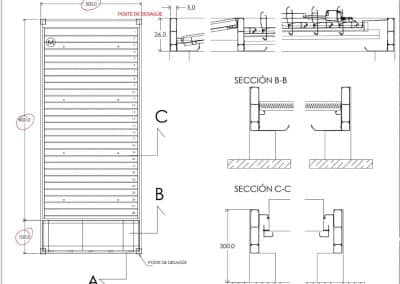
Pérgola adosada compuesta por un Techo Fijo de Panel Sándwich con unas medidas de 3000 mm de línea y 1000 mm de salida.
Pérgola Bioclimática de lamas orientables de 3000 mm de línea y 6000 mm de salida, con una distancia entre pilares de 7000 mm.
Color de la estructura 7016 gris antracita y Panel Sándwich y lamas en 9010 blanco mate para dar continuidad a la zona de cubierta.
Pérgola Bioclimática de lamas orientables de 3000 mm de línea y 6000 mm de salida, con una distancia entre pilares de 7000 mm.
Color de la estructura 7016 gris antracita y Panel Sándwich y lamas en 9010 blanco mate para dar continuidad a la zona de cubierta.
Recursos humanos empleados:
Ingeniero Técnico
Jefe de Obra
Jefe de Obra
Instaladores Especialistas en Pérgolas Bioclimáticas
Instaladores de Carpintería de Aluminio
Albañiles
Alicatador
Material Empleado:
Furgoneta L2H2 para las Estructuras de la Pérgola Bioclimática, Cristales y Techo Fijo de Vidrio
Furgoneta pequeña para las herramientas y pequeño material
ml de pintura Blanca
Tornillos AW25 4,8 x 25 DIN 7504 - marca Würth
ml de Silicona neutra para sellados interiores - Marca Würth
ml de Silicona MS Polímero para sellados superiores - Marca Würth
Tornillos AW25 5,5 x 80 DIN 7504 - Marca Würth
Tornillos HRD para la fijación a estructura de hormigón - MARCA HILTI
Nivel láser de punto - Marca Würth
Necesidades del cliente antes de la instalación:
El Cliente solicitaba una Pérgola para cubrir una parte adyacente a su piscina donde colocaría una zona de estar y una barbacoa.
Cuando realizamos la visita en obra, diseñamos una solución que albergará la Pérgola con Panel Sándwich y la Pérgola Bioclimática dentro de la misma estructura, dejando una distancia entre postes de 7000 mm.
Cuando realizamos la visita en obra, diseñamos una solución que albergará la Pérgola con Panel Sándwich y la Pérgola Bioclimática dentro de la misma estructura, dejando una distancia entre postes de 7000 mm.
Descripción del Proyecto:
Este proyecto tenía como reto la forma irregular de la terraza en la zona de acceso con una escalera hasta el área a cubrir.
Para poder dar amplitud a la terraza de este ático integramos la zona de la escalera en la instalación cubriéndola con una Pérgola Solario con Techo Fijo de vidrio laminar 4+4 y acabado mate.
Para ofrecer protección al viento, frío y lluvia cubrimos parcialmente la terraza con tres sistemas de carpintería: Cortina de Cristal para la zona del frontal y acceso al jardín; Correderas sin perfilería para los laterales para no perder las vistas a la zona de la sierra de Madrid; Carpintería Fija con vidrio 3+3 con acabado mate que proporcionaba intimidad con las zonas comunes a otros vecinos.
Imágenes de la Instalación de la Pérgola Bioclimática, Pérgola con Techo Fijo de Panel Sándwich y Cristales Fijo
Vídeo Explicación de la Instalación de la Pérgola Bioclimática y Pérgola con Techo Fijo de Panel Sándwich
Indice de Contenidos
Opiniones de Clientes

Mónica -
20:45 26 Jan 26
Un trabajo excepcional!! Definitivamente están en el top de profesionales. Nos han instalado una pérgola bioclimática en el solarium, y a pesar de que el espacio era complicado, el resultado ha sido impresionante. Los materiales y el diseño son espectaculares y la forma de trabajar ha sido impecable. Mi enhorabuena para todo el equipo, y en especial a Jose por lo bien que nos ha aconsejado.
Faustino B.
10:07 12 Jan 26
La mayoría de las veces, cuando no conoces a nadie y buscas un servicio o instalación por internet, siempre estás un poco a merced de las reseñas recibidas y con cierta duda razonable. Pero he de decir que en este caso la cantidad enorme de reseñas extraordinarias que tiene, lo son con fundamento. Empresa seria donde las haya, rápida en su respuesta desde el minuto uno con Eva que contactó conmigo (mientras otras empresas con las que contacté se demoraron bastante) con el fin de ofrecer asesoramiento y recabar la información necesaria para realizar el presupuesto de mi pérgola bioclimática. Y ese contacto rápido no significa que no tengan trabajo, más bien lo contrario, pero es que tienen dedicación y el personal adecuado para ello. Precios muy competitivos dada la gran calidad de materiales empleados, desde la pérgola y acristalamiento hasta los que no se ven como el sellado, tornillos, etc. Eso ya es estupendo, pero lo mejor reside en su forma de trabajo, totalmente serio, responsable y profesional. Planeamiento minucioso y una organización para copiar y envidiar. Con todas las herramientas que puedas imaginar. Además el proceso muy limpio. José es un profesional de los que van quedando pocos con una visión impecable de como realizar el trabajo o sortear cualquier dificultad que pueda surgir en el momento. Es decir, han conseguido aunar una calidad excepcional, con una servicio metódico, desde la oficina hasta el montaje, con lo que hacen el cóctel perfecto. Esta vez he acertado de pleno con la elección de Sistemas Bioclimáticos y sin duda, si vais a instalar una pérgola, un cerramiento, acristalar un espacio, etc., contad con ellos, no os arrepentiréis y lo recomendaré siempre que pueda. Gracias Jose, Eva y Marta por todo.
pedro L.
12:58 12 Dec 25
Empresa muy seria, materiales de calidad y montaje perfecto. Jose y su equipo de montaje, cuidadosos y pendientes de dejarlo todo en condiciones, hasta el más mínimo detalle. Totalmente recomendable.
Raquel Paniagua B.
06:44 12 Dec 25
Muy profesionales. La instalación perfecta y con máxima atención a los pequeños detalles. Sin duda los recomiendo
Luis F.
12:10 26 Nov 25
He instalado dos pérgolas bioclimáticas en casa con ellos, una hace un par de años y la otra la acaban de instalar y estoy encantado con el resultado. La atención al detalle y el servicio post venta son de diez.
Andres E.
07:32 30 Sep 25
LOS MEJORES DEL MERCADO!!!
José, Marta y todo su equipo son unos excelentes profesionales.
Trabajo impecable, sin lugar a duda la mejor decisión que tomé fue elegir a ellos para el cerramiento de mi terraza.
Asesoramiento de calidad, acabados de lujo!
Una auténtica maravilla
Repetiría una y mil veces sin dudarlo!
José, Marta y todo su equipo son unos excelentes profesionales.
Trabajo impecable, sin lugar a duda la mejor decisión que tomé fue elegir a ellos para el cerramiento de mi terraza.
Asesoramiento de calidad, acabados de lujo!
Una auténtica maravilla
Repetiría una y mil veces sin dudarlo!
Óscar F.
09:02 15 Sep 25
Todo bien con la venta e instalación de la pérgola bioclimática. Asesoramiento profesional sobre calidades, accesorios y terminaciones que finalmente se vio reflejado en una instalación rápida, cuidadosa con la propiedad y bien rematada. Como es una instalación reciente, no puedo hablar del servicio posventa pero me sorprendería que no estuviera a la altura.
S M.
12:04 08 Sep 25
Trato, atención a los detalles (hasta los más pequeños que como neófito en este mundillo de las "pérgolas" se te escapan, pero ahí están ellos para explicar y aclarar las cosas), Profesionalidad de 10, plazos cumplidos. Instalación de calidad (la pérgola ha quedado como si viniera "de serie" con la casa). Un 10 para vosotros, desde la parte administrativa hasta los instaladores.
Pablo Oliva G.
08:49 12 Aug 25
Solicité 15 presupuestos antes de decidirme por SistemasBioclimaticos para la instalación de una pérgola bioclimática con estructuras adosadas de panel sándwich fijo. Fue el último presupuesto, pero cuando hablé con José y Marta, supe que era el mejor. La resolución de dudas durante el diseño de la solución, las recomendaciones técnicas, la capacidad de José para ayudarte a imaginar cómo va a quedar la instalación... hacen que te sientas seguro de cada una de las decisiones que vas tomando. El producto ya instalado, es una auténtica maravilla, y el servicio de atención post venta, para aclaración de dudas, no se queda atrás. Recomiendo esta empresa 100%, da gusto cruzarse con profesionales así en estos días...¡Muchas gracias!
PS. Repetimos próximamente con una cortina de cristal que sabemos que no nos decepcionará 😉
PS. Repetimos próximamente con una cortina de cristal que sabemos que no nos decepcionará 😉
Alfonso G.
21:10 08 Jul 25
Un servicio y un trato excepcional, destacando la escucha, la atención al detalle, el rigor en el trabajo de instalación y la atención cliente. Una experiencia muy positiva y recomendable. Estamos muy salisfechos con la calidad del producto y con todo el proceso. Tanto de diseño como de ejecución.

Sergio V.
09:28 01 Jul 25
Excelentes profesionales, muy buen asesoramiento y recomendaciones en el planteamiento de nuestra pergola. Ya nos la han instalado y con una ejecución al detalle. Sin lugar a duda, recomendable 100%.
hernan C.
17:54 19 Mar 25
Encantados con la pérgola y el cerramiento.
Grandes profesionales!!
Muchas gracias por todo!
Grandes profesionales!!
Muchas gracias por todo!
Angel Hernandez M.
17:11 03 Mar 25
Hemos instalado con ellos tanto la pérgola bioclimatica como el acristalamiento periférico, no hemos podido quedar más satisfechos. Trato cercano y muy profesional, con consejos y asesoramiento desde la fase de diseño. Capaces de resolver in situ cualquier imprevisto dejándolo en óptimas condiciones. Sobre la postventa, que casi siempre es lo que más preocupa, tampoco tenemos queja alguna, se preocupan de que todo quede como el cliente quiere, por muy perfeccionista que sea. Gracias José, Marta, Robin, Jorge, y a todo el equipo, altamente recomendable.
carmen gonzalez G.
17:58 27 Jan 25
Excelentes profesionales, desde la toma de contacto, mediciones, presupuesto y ejecución. Cumplen plazos. Y un tema muy importante cuando se trabaja en una casa habitada, la limpieza y cuidado. Trato personal excelente. Jose, gracias por tu trabajo, ojalá hubiera más gente la mitad igual que tú
Carmen.
Carmen.
Elena Santamaría H.
15:10 13 Nov 24
Todo el proceso ha sido impecable. Desde el asesoramiento previo hasta el montaje. Incluso han acortado los plazos inicialmente previstos. Muy amables en el trato, profesionales y con unos precios ajustados. 100% recomendables. Gracias Jose y Marta.
Ana G.
10:24 12 Nov 24
Recomendable sin duda!!. Gran experiencia de profesionalidad y buen trato! Después de mucho buscar y comparar decidimos probar con esta empresa porque queríamos una pérgola con lamas retractiles, cristales, luces, toldo,....algo que nos parecía complicado. Al principio puede parecer que son distantes puesto que la primera aproximación y presupuesto es a través de fotos, pero esto es una prueba más de que su proceso de venta está bien definido de acuerdo a su dimensión de empresa. Marta te atiende con toda su amabilidad al teléfono y te explica como va a ser todo. Después cuando llega José a casa te das cuenta de que has acertado con el profesional, mide y calcula al milímetro, te da ideas, la informacion se nota que es adaptada a tus necesidades y no una venta comercial de un producto sin mas. Cuando llega el día de la instalación, el equipo que vino, en mi caso, fue súper respetuoso, amables, bien dirigidos y coordinados por Jose y si hay que recalcular sobre la marcha y hacer pequeños cambios, pues se hacen! Y no puedo olvidar que al terminar cada día, dejaban todo recogido y limpio como no me había pasado nunca. Ha quedado impresionante.
En resumen, ha sido una experiencia Espectacular en general!! las pequeñas cosas menos buenas,si las ha habido, quedan olvidadas al momento por el buen hacer general. Gran equipo!!
En resumen, ha sido una experiencia Espectacular en general!! las pequeñas cosas menos buenas,si las ha habido, quedan olvidadas al momento por el buen hacer general. Gran equipo!!
David
11:45 31 Oct 24
Increíble instalación! no podemos estar más contentos con el resultado de la pérgola bioclimática, son muy profesionales y te hacen el proyecto a medida con los pequeños detalles que necesites que marcan la diferencia, y además antes de tiempo, los focos merecen la pena la verdad. Si buscas y comparas, sin duda el mejor. Gracias Jose y Marta por la atención.
Noemí M.
11:04 24 Oct 24
Magníficos profesionales, un 10!!!! Después de contactar con varias empresas fueron los únicos que vieron viable lo que queríamos hacer. Durante el diseño, José tiene en cuenta todos los detalles, aporta muy buenas sugerencias y da mucha confianza. El resultado final se ajusta perfectamente a las expectativas e incluso las supera. Gracias también a Marta por la atención y cordialidad en la comunicación y al equipo de instaladores (Robinson y Jorge) por el esmero en la ejecución del trabajo.
Elisa A.
10:37 14 Oct 24
Excelentes profesionales. Sin duda una gran elección conste con ellos . Nos aconsejaron en la elección de la pérgola, su instalación no era sencilla y el resultado ha sido inmejorable. Hubo que realizar varios ajustes posteriores y siempre se han solucionado. Seguimos contando con ellos para el mantenimiento.
María Jesús González G.
11:21 13 Sep 24
Estamos súper contentos con las pérgolas que hemos instalado en nuestra casa. Jose entendió a la primera lo que queríamos, si diseño en 3D lo clavò. La instalación súper eficaz y al detalle en todo momento.
Además te asesoran sobre la orientación del sol etc. para ayudarte en todo momento y buscar la satisfacción del cliente. Los recomiendo 100%
Además te asesoran sobre la orientación del sol etc. para ayudarte en todo momento y buscar la satisfacción del cliente. Los recomiendo 100%
Sonsoles González V.
09:12 06 Sep 24
Grandes profesionales. Estoy muy contenta con el trabajo realizado. Muy meticulosos y serios a la hora de terminar los trabajos. Ellos mismos hasta que no lo ven perfecto, no lo dan por terminado.
Adriana H.
10:22 03 Jul 24
Recomendadísimos. Estamos muy satisfechos con la atención recibida tanto por Marta, del departamento comercial (que en todo momento ha facilitado la comunicación) como con Jose y el resto del equipo (durante las mediciones e instalación).
Durante la instalación trabajaron de forma más que eficiente y fueron muy meticulosos con el acabado.
La pérgola bioclimática ha quedado preciosa.
Sin duda, muy profesionales.
Durante la instalación trabajaron de forma más que eficiente y fueron muy meticulosos con el acabado.
La pérgola bioclimática ha quedado preciosa.
Sin duda, muy profesionales.
MIGUEL R.
21:10 15 Jun 24
Muy buen trabajo. Grandes profesionales. Forman un gran equipo. Totalmente recomendables.
Enhorabuena.
Enhorabuena.
Horacio B.
17:06 23 May 24
Estamos muy contentos con la atención recibida por parte de Jose y Marta. Nuestra terraza no es sencilla de resolver con una pérgola bioclimática de lamas orientables y lo han hecho fantásticamente donde otros ni siquiera se atrevían a ofertar.
Han considerado todo lo que les decíamos según la idea que teníamos y el resultado ha sido mejor de lo esperado.
Realizan el montaje con mucho detalle, cuidado y rapidez; y hemos quedado muy satisfechos.
Han considerado todo lo que les decíamos según la idea que teníamos y el resultado ha sido mejor de lo esperado.
Realizan el montaje con mucho detalle, cuidado y rapidez; y hemos quedado muy satisfechos.
Ana Diéguez R.
06:22 23 May 24
La atención excelente desde el primer momento. Marta pendiente de todo y en constante comunicación durante todo el proceso. Jose un profesional como quedan pocos. Nos asesoró e informó de todos los detalles, características técnicas, materiales... Nos diseñó la pérgola personalizada, con el diseño que le iba perfecto al espacio. Han cumplido en tiempos y han superado con creces nuestras expectativas. Ha sido un placer y sin duda los recomendaría al 100%.
Jorgami G
09:20 07 May 24
100% recomendable, hemos puesto una pérgola bioclimática y dos toldos y ha quedado todo perfecto. El trabajo y el trato de todos los trabajadores inmejorable. Muy satisfecho con todo
Gracias¡¡¡
Gracias¡¡¡
Eva K.
07:14 13 Apr 24
Hace tiempo que Jose y su equipo nos instalaron la pérgola bioclimática (con cortina de cristal incluido) y según pasan los años estamos convencidos de que no podíamos haber elegido mejor opción, mejor empresa y mejores instaladores. Ademas indicar que la atención postventa siempre de diez… cuando hemos tenido que recurrir a ellos por algún motivo relacionado con la pérgola, nos han atendido siempre rápido y muy eficazmente (gracias a Marta por las gestiones).. aprovechamos para subir fotos
V M
20:16 09 Apr 24
Asesoramiento personalizado, trabajo profesional y trato humano excelente. Muy contentos con el resultado final.
Relación calidad-precio muy buena.
Gran equipo de trabajo. Totalmente recomendables.
Gracias.
Relación calidad-precio muy buena.
Gran equipo de trabajo. Totalmente recomendables.
Gracias.
Jose Ignacio Fernandez D.
19:51 22 Mar 24
Amabilidad , seriedad , profesionalidad, creo que faltan adjetivos para poder calificar justamente el trabajo realizado . Gracias
Manuel Fortes I.
21:12 14 Feb 24
Trato muy profesional con todo el equipo y calidad del producto excepcional
David C.
12:14 05 Feb 24
Calidad de materiales sobresaliente. Asesoramiento personalizado. Atención inmejorable. Repetiremos sin duda
Arancha N.
12:33 29 Dec 23
Son unos profesionales y responden ademas ante cualquier imprevisto. La pérgola bioclimática que hemos puesto ha superado nuestras expectativas.
Fernando Lence M.
07:59 29 Sep 23
Hemos puesto una pérgola en L con techo fijo y esta empresa es totalmente recomendable. Muy profesionales y eficaces. Muy buen asesoramiento con visita a sus instalaciónes y después muy buena ejecución y gestión y un resultado excelente, la pérgola ha quedado genial así que muy contentos de haberlos escogido.
Pronto repetiremos con ellos para algún otro trabajo.
Gracias a Jose, Marta y resto del equipo!
Pronto repetiremos con ellos para algún otro trabajo.
Gracias a Jose, Marta y resto del equipo!
Elena Atienza S.
16:11 03 Jul 23
Nos instalaron una pergola bioclimatica, y no pudo quedar mejor. Muy contentos con el resultado. Muy profesionales, cuidan el más mínimo detalle. Lo recomiendo sin duda.
Daniel P.
19:38 04 Jun 23
Cuando te enfrentas a un proyecto que, pareciendo sencillo, supone una gran inversión, es fundamental conocer la calidad del producto (para ello me acerqué a sus instalaciones), pero el resultado tiene más que ver con la profesionalidad de quienes lo instalan y la tranquilidad durante el proceso de quienes te atienden; Marta me guió atendiendo modificaciones del presupuesto y planificando visitas y Jose se encargó de que el resultado superase mis expectativas desde el principio, tanto en la toma de requerimientos como en el diseño de las soluciones para, (p.e. evitar canaletas) e incluso se prestó a instalarme accesorios que compré por mi cuenta. Tuve la suerte de poder estar presente mientras realizaban la instalación y escuché a Jose decir “…yo no me equivoco porque yo no tengo prisa…”, venía además sabiendo lo que tenían que hacer paso a paso y lo hicieron en menor tiempo del que tenían previsto para ello. Cuando por lluvias torrenciales apareció alguna gotera, vinieron a rematar el sellado, siendo mi grado de satisfacción máximo. Tengo pendiente encargarles otros dos screen para rematar la instalación después del verano y al menos dos vecinos de mi urba seguirán mis pasos, probablemente contratando sus proyectos con Sistemas Bioclimaticos.
Marta, Jose y resto del equipo; ¡muchas gracias!
Marta, Jose y resto del equipo; ¡muchas gracias!
Judith F.
14:24 13 May 23
Atención personalizada. Calidad, trabajo bien hecho, detallistas, grandes profesionales. Seriedad y confianza. Muy, muy recomendable. Si quisiera una pérgola bioclimática… yo no lo dudaba… SISTEMAS BIOCLIMATICOS. Gracias equipo!
Pako B.
16:50 12 May 23
En las últimas semanas he tenido la oportunidad de estar en contacto con Marta y con José de Sistemas Bioclimáticos. La experiencia no ha podido ser más positiva: la rapidez, amabilidad, el tiempo que dedican a cada cliente, la experiencia y confianza que transmiten y la búsqueda de la perfección en cada pequeño detalle del proyecto. En nuestro caso buscábamos una pérgola bioclimática orientable y retráctil para un pequeño patio. Ellos nos han ayudado a centrar nuestras ideas y plasmarlas en algo real y tangible. El diseño y el presupuesto siempre ha estado en línea al servicio que presta esta empresa.
En esta ocasión hemos optado por una opción más tradicional que la pérgola bioclimática pero, si en el futuro tengo una necesidad de un sistema de cerramientos o pérgolas bioclimáticas volvería 1 y 1000 veces a contactar con ellos para hacer realidad mi proyecto. La experiencia durante estas semanas ha sido espectacular superando nuestras expectativas. 100% recomendables. Gracias José y Marta por todo, y toda la suerte del mundo de cara al futuro.
En esta ocasión hemos optado por una opción más tradicional que la pérgola bioclimática pero, si en el futuro tengo una necesidad de un sistema de cerramientos o pérgolas bioclimáticas volvería 1 y 1000 veces a contactar con ellos para hacer realidad mi proyecto. La experiencia durante estas semanas ha sido espectacular superando nuestras expectativas. 100% recomendables. Gracias José y Marta por todo, y toda la suerte del mundo de cara al futuro.
Carlos T.
10:34 21 Apr 23
Estuve valorando mas de cuatro empresas y fueron los unicos que me dieron el asesoramiento que necesitaba. Tuve problemas con la anterior instalacion y el techo se hundio. Sistemas Bioclimaticos fueron los unicos que aportaron una solucion con muy buen asesoramiento y garantias. Totalmente recomendables!!
Fernando F.
18:34 08 Mar 23
Después de más de dos años esperando una instalación con otro proveedor nos recomendaron Sistemas Bioclimáticos y desde el primer momento nos demostraron su profesionalidad, su orientación a cliente y su objetivo que estuviéramos totalmente satisfechos con la instalación y el resultado ha sido ESPECTACULAR.
Se han encargado de todo: pérgola bioclimática, cerramiento de cortinas de cristal, toldos, suelo..... E incluso de instalarlos cableado electrico y de antena y calefactores.... despreocupándonos de cualquier tema.
Muchísimas gracias a Marta, José y a todo el equipo por habernos dado esta maravilla.
Totalmente recomendables y fiables, profesionalmente y personalmente.
Se han encargado de todo: pérgola bioclimática, cerramiento de cortinas de cristal, toldos, suelo..... E incluso de instalarlos cableado electrico y de antena y calefactores.... despreocupándonos de cualquier tema.
Muchísimas gracias a Marta, José y a todo el equipo por habernos dado esta maravilla.
Totalmente recomendables y fiables, profesionalmente y personalmente.
Jose Luis O.
18:55 20 Feb 23
Excelente nuestra experiencia con Sistemas Bioclimáticos. Desde la forma y el detalle en el asesoramiento, hasta el cumplimiento de los plazos y el buen trabajo de la instalación. Muy recomendables 👌
Patricia C.
15:17 01 Feb 23
Lo recomiendo 100% por su seriedad, calidad, organización y servicio, estamos felices con la pérgola bioclimática y todo el trabajo que nos han hecho. Equipo y servicio de 10! Gracias!
Ricardo G.
20:20 27 Dec 22
Muy, pero que muy profesional. De lo mejor que me he encontrado, tanto administrativa, comercial cómo técnicamente. En diseño y ejecución difícil de mejorar. Hay que tener en cuenta que se trataba de la instalación de una pérgola sobre estructura existente e irregular. El trato, además excelente. Trabajo en campo en soporte digital. Muy recomendable.
Agustina B.
09:19 02 Dec 22
Contratamos con ellos una pérgola bioclimática y unos toldos en octubre y hemos vuelto a confiar en ellos para unos nuevos toldos en un par de habitaciones. He de destacar en esta ocasión la labor de asesoramiento de José en la visita de toma de medidas. Nos recomendó un sistema de toldo vertical en el mismo tono que la estructura de la fachada donde se ubican las ventanas y ha sido todo un acierto. Los toldos pasan totalmente desapercibidos tanto abiertas o como cerrados y el resultado es muy estético. No dudaría en volver a recomendar a Marta, José y el resto del equipo.
Alfonso Solana G.
15:30 07 Sep 22
Buenos profesionales, saben lo que hacen y orientan perfectamente al cliente. Materiales de calidad y gran trabajo de instalaciones con limpieza y plazos ajustados a lo anunciado.
Muy recomendable en todos los sentidos y seguro que volveré a trabajar con ellos.
Muy recomendable en todos los sentidos y seguro que volveré a trabajar con ellos.
Julián G.
12:05 12 Aug 22
No nos conocíamos, pero teníamos buenas referencias. Además, en nuestro caso, partíamos de una semi-pérgola de hormigón sobre la que había que adaptar la pérgola bioclimática. La capacidad de adaptación y la creatividad para dar una solución práctica nos ha permitido tener una bonita zona de confort donde pasar las noches de verano y de invierno. Muchas gracias a José y su equipo, técnico y comercial, que han hecho que todo sea fácil y a medida. Totalmente recomendables.
Miguel Angel Mendez A.
20:32 10 Aug 22
Muy profesionales, gran calidad de atención desde el proyecto, gestión e instalación. Con esta ocasión, ya son 2 proyectos ejecutados de alta calidad, en tiempo y de forma profesional. Gracias! y os deseamos lo mejor.
Maria R.
10:57 05 Aug 22
Fantástico servicio. La pérgola es una preciosidad, y la atención de todo el equipo (Diana, Marta, José y todo su equipo de montaje) ha sido impecable. Muchísimas gracias a todos por un servicio de 10. Estamos tremendamente agradecidos y no dudaremos en recomendarles y contar con ellos para cualquier otro servicio que necesitemos
Beatriz G.
19:41 03 Aug 22
Hemos contratado la instalación de una pergola biclimatica, iluminación, cortina de cristal y screen, solo puedo tener buenos comentarios. La primera etapa de asesoramiento nos dio mucha tranquilidad, este tipo de productos suponen un desembolso importante y si tienes un buen asesoramiento es fenomenal.
Producto de alta calidad, instalación de 10, Jose y su equipo estan atentos a todos los detalles .El resultado no ha podido ser mejor, estamos muy contentos con nuestro cerramiento, tenemos un salónn de invierno y verano,.cien por cien recomendable.
Producto de alta calidad, instalación de 10, Jose y su equipo estan atentos a todos los detalles .El resultado no ha podido ser mejor, estamos muy contentos con nuestro cerramiento, tenemos un salónn de invierno y verano,.cien por cien recomendable.
Jeannette V.
17:37 18 Jul 22
Solicitamos muchas propuestas antes de decantarnos por Sistemas Bioclimáticas. Su profesionalidad, relación calidad-precio y experiencia demostrada me convencieron. Estamos muy satisfechos con el trabajo realizado!
Jose Luis Gonzalez G.
22:39 24 Jun 22
Empresa top especializada en cerramientos de terrazas con pérgolas bioclimáticas, cortinas de cristal y techos fijos o móviles. Desarrollan una planificación muy cuidada del proyecto a llevar a cabo y lo acometen en los plazos inicialmente previstos. Serios, organizados, y volcados en ofrecer al cliente el producto que se ajusta mejor a sus necesidades, evitando gastos innecesarios. La calidad del trabajo, excelente.
MAR A.
12:56 18 May 22
Unos grandes profesionales, hemos quedado muy contentos.Jose nos asesoró fenomenal y el acabado impecable.
Lo recomiendo 100% .
Lo recomiendo 100% .
María José M.
09:27 07 Apr 22
Estoy encantada con mi nueva terraza, ha quedado espectacular con la cortina de cristal. Grandes profesionales que han controlado hasta el último detalle. Ahora ya tenemos un espacio más en casa, aunque sea pequeño, para disfrutar todo el año. Gracias.
Begoña R.
13:29 24 Jan 22
José trabaja espectacular!!!! es el tercer trabajo que me hacen. Son unos profesionales y lo dejan perfecto.
Antonio C.
12:37 17 Dec 21
Serios y muy profesionales. Excelente atención y trato. Altamente recomendable.
Javier Martín S.
17:47 01 Dec 21
Solo con una gran profesionalidad, se consigue un gran trabajo, es el resultado de Sistema bioclimáticos. Muy contento co el resultado .
Sergio Plaza J.
22:19 02 Aug 21
Magníficos profesionales. Trato excepcional desde la atención telefónica inicial, primeras visitas y durante la ejecución de los trabajos. Nos han terminado hoy la instalación de pérgola bioclimática, cortina de cristal y toldo y nuestro jardín ha quedado espectacular. Todo totalmente personalizado, a nuestro gusto y con muy buen asesoramiento. Trabajo minucioso, al detalle y buen material. Repetiría. Gracias Jose y equipo!!!
Blas M.
16:30 26 May 21
Muy profesionales , todo fenomenal desde el primer momento, totalmente recomendable.
D G.
20:35 16 Apr 21
Gente muy profesional . Muy buena atención . Producto de calidad y bien trabajado . Al principio, cuando estábamos buscando , veíamos muchas dificultades , ya que no era una instalación sencilla , y nunca hubiéramos imaginado instalar esto. Al final quedó muy bien , sobre todo por las vueltas que se dio a nivel de medidas y el grado de minuciosidad que dedicó en las diferentes visitas hasta conseguir el mejor resultado , buscando las mejores soluciones . Es muy importante esto ya que se trata de un producto que no es barato y en el que la calidad y el resultado final es el punto fuerte . Lo dicho , bastante satisfechos en todo . Quedó muy bien la instalación.
Ana T.
09:05 15 Apr 21
Auténticos profesionales que ya tuve el placer de conocer hace 6 años con el asesoramiento e instalación de la Pérgola Bioclimática. Tras el paso de “Filomena” que descargó sobre ella casi un metro de nieve acumulado en todo el tejado de casa, no dudé en llamarlos y han vuelto a hacer una maravillosa labor de forma rápida e impecable. Un trato inmejorable. Muy muy recomendable.
Víctor E.
09:39 17 Mar 21
Tras consultar con varias empresas esta fue la única que nos dio seguridad y además nos dio más soluciones e ideas a la hora de instalar la pérgola (Gracias Jose). Finalmente la instalamos con ellos y quedamos muy contentos, hubo que hacer un par de ajustes una vez terminada y lo hicieron todo correcto. Tanto la mano de obra de todo el equipo que vino, la calidad del montaje, y por supuesto el trato por parte de Marta al teléfono es de agradecer. Gracias por todo el trabajo.
jose S.
12:57 14 Mar 21
Es la segunda pérgola que me ponen y como anteriormente, muy bien. Les recomiendo.
David Jimenez Y.
07:49 10 Mar 21
Trabajo excepcional. Muy cuidadosos en los detalles. Nos ha quedado un cerramiento de escándalo. Precios competitivos. Estamos súper contentos de cómo ha quedado y no dudamos en recomendarlo a cualquiera que esté interesado en un cerramiento.
ofupro 5.
19:52 10 Nov 20
He tenido el placer de encargar un trabajo a esta empresa y el resultado ha sido completamente de mi agrado.Profesionalidad,calidad,precio y muy bien sus montadores un placer gracias.

Fran R.
21:09 17 Sep 20
Mi experiencia con Sistema Bioclimaticos ha sido mucho mas que satisfactoria. Un 10! En nuestro caso, instalaron una pergola bioclimatica.
Desde la primera visita, Jose demostro su claro dominio de este campo. Despues de estudiar nuestra terraza, nos propusieron opciones mucho mejores a las que yo habia contemplado inicialmente, lo que a la larga nos ha permitido disfrutar de un resultado espectacular.
La instalacion fue impecable. La ayuda, las explicaciones, y los materiales han sido superiores. Merece mucho la pena la inversion
My recomendables en todo. Fantasticos.
Desde la primera visita, Jose demostro su claro dominio de este campo. Despues de estudiar nuestra terraza, nos propusieron opciones mucho mejores a las que yo habia contemplado inicialmente, lo que a la larga nos ha permitido disfrutar de un resultado espectacular.
La instalacion fue impecable. La ayuda, las explicaciones, y los materiales han sido superiores. Merece mucho la pena la inversion
My recomendables en todo. Fantasticos.

Juan Carlos M.
10:45 16 Jul 20
Nos ha gustado mucho la calidad del servicio, un asesoramiento personalizado de 5 estrellas. Nos propusieron diferentes alternativas que han quedado muy bien. Empresa muy formal y trabajo excelente. Estamos muy contentos con nuestra pérgola bioclimática.
lola Manzanares M.
14:58 11 Jul 20
Estoy encantada con el resultado de la Pérgola Bioclimatica. José es un gran profesional y tiene numerosos detalles. Desde luego son los mejores

Estefania Moya C.
08:09 14 May 20
Buscamos y comparamos mucho porque la instalación de una pérgola no es algo que se haga a diario. Nos decidimos por Sistemas Bioclimaticos por la atención, amabilidad, calidad y profesionalidad en el trato. Hoy ya tenemos instalada nuestra pergola en casa y estamos encantados. Buen trabajo. Enhorabuena al equipo.

Miguel G.
10:42 07 May 20
La pérgola bioclimática que instalé en la terraza merece muchísimo la pena, ha pasado de ser un espacio medio muerto a una zona de muchísimo aprovechamiento. La instalación muy rápida y muy bien terminada!

Esther P.
14:07 13 Feb 20
Recomiendo totalmente esta empresa para realizar la instalación de la pérgola bioclimática, son unos auténticos profesionales y buscan las mejores opciones para ti, aunque a ellos les suponga mas trabajo.
Además, dan unos precios muy competitivos, por lo que no se puede pedir más!
En nuestro caso es una pérgola entre paredes, con la dificultad que ello supone y ha quedado perfecto. Además, conozco otras instalaciones con postes que han puesto en mi zona y tienen muy buena pinta.
Muchas gracias por todo Jose y Marta!
Además, dan unos precios muy competitivos, por lo que no se puede pedir más!
En nuestro caso es una pérgola entre paredes, con la dificultad que ello supone y ha quedado perfecto. Además, conozco otras instalaciones con postes que han puesto en mi zona y tienen muy buena pinta.
Muchas gracias por todo Jose y Marta!

Marta M.
17:08 28 Jan 20
Personal muy profesional y muy agradable! Desde el primer momento se notaba que dominaban el tema y nos ayudaron mucho a decidir el tipo de instalación que mejor encajaba en nuestra casa. Fueron además muy pacientes con los cambios que íbamos introduciendo. El trabajo ha quedado perfecto! Quiero mencionar además que les solicitamos si podían adelantar la fecha de instalación para poder tener disponible la pérgola para un evento familiar, y se desvivieron para acabarlo a tiempo!

Carmela B.
14:23 26 Oct 19
Buscábamos una solución para nuestro jardín y Sistemas Bioclimaticos nos asesoró. El resultado no puede ser más satisfactorio (he colago un par de fotos). Son totalmente recomendables, serios, comprometidos y profesionales. Les doy 5 estrellas porque no les puedo dar más.
Manuel D.
20:24 22 Nov 18
Profesionales que cuidan hasta el mínimo detalle para una terminación de obra perfecta.
Desde aconsejar sobre cuál es la mejor solución hasta el acabado realizan un trabajo excepcional.
Totalmente recomendables
Desde aconsejar sobre cuál es la mejor solución hasta el acabado realizan un trabajo excepcional.
Totalmente recomendables

Nico M.
22:33 08 Jul 18
Sistemas Bioclimáticos, una agradable sorpresa por su profesionalidad con un trabajo y resultado casi perfectos.
La pérgola que hemos puesto en casa a resultado un éxito.
Magnifico planteamiento y una ejecución en el tiempo indicado (3 días).
El resultado está a la vista.
La pérgola que hemos puesto en casa a resultado un éxito.
Magnifico planteamiento y una ejecución en el tiempo indicado (3 días).
El resultado está a la vista.
Categorías
Cerramientos de Terrazas
- Cerramientos de Terrazas con Cortinas de Cristal
- Cerramientos de Terrazas con Techos Fijos y Móviles
- Instalaciones con Cortinas de Cristal – Pérgolas Bioclimáticas
- Instalaciones con Techos Fijos y Móviles – Pérgolas Bioclimáticas
- Instalaciones de Pérgolas Bioclimáticas en Madrid y Provincias Cercanas
- Instalaciones de Pérgolas Bioclimáticas, Cortinas de Cristal, Techos Móviles y Fijos
- Pérgolas Bioclimáticas en Madrid, Orientables Retráctiles y con Techo Fijo Panel Sándwich
Otras Instalaciones
- Instalación de Pérgola Bioclimática y Pérgola con Techo Fijo de Panel Sándwich con cristal fijo en un Chalet de Leganés en Madrid
- Instalación de Pérgola Bioclimática con Techo Fijo de vidrio y Cortina de Cristal en un Ático de Valdebebas en Madrid
- Instalación de Pérgola Bioclimática con Pilares Desplazados en un Chalet de La Moraleja en Madrid
- Instalación de Pérgola con Techo Fijo de Panel Sándwich en un Chalet de Torrelodones en Madrid
- Instalación de Pérgola Bioclimática Retráctil Motorizada en un Ático de Alcorcón Madrid
- Instalación de Pérgola Bioclimática Orientable Motorizada con Diseño Integrado en Chalet de Boadilla del Monte en Madrid
- Instalación de un Techo Móvil de Cristal con Accionamiento Motorizado vía radio en una terraza de Montecarmelo en Madrid
- Instalación de Techo Fijo con Cerramiento Vertical de Sistema Replegable en una Terraza de Madrid Centro
- Instalación de Pérgola Bioclimática de Lamas Orientables motorizada con diseño adaptado a una zona de barbacoa en una terraza de Arroyomolinos en Madrid
- Instalación de Pérgola Bioclimática de Lamas Orientables Manual y Estructura Plana anexa en una terraza de Mirasierra en Madrid
presupuestos de pérgolas bioclimáticas
La información solicitada tiene el único objetivo de poder responder a tu consulta y ofrecerte nuestros servicios llegado el caso. No hacemos spam ni cedemos los datos a terceros. La información se envía directamente a un email de la empresa que gestionamos dentro de nuestros procesos habituales para este tipo de soporte.
Visítanos
C/ Santiago Ramón y Cajal, 29
Pol. Ind. Valdefuentes
28939 - Arroyomolinos
Madrid
Pol. Ind. Valdefuentes
28939 - Arroyomolinos
Madrid









